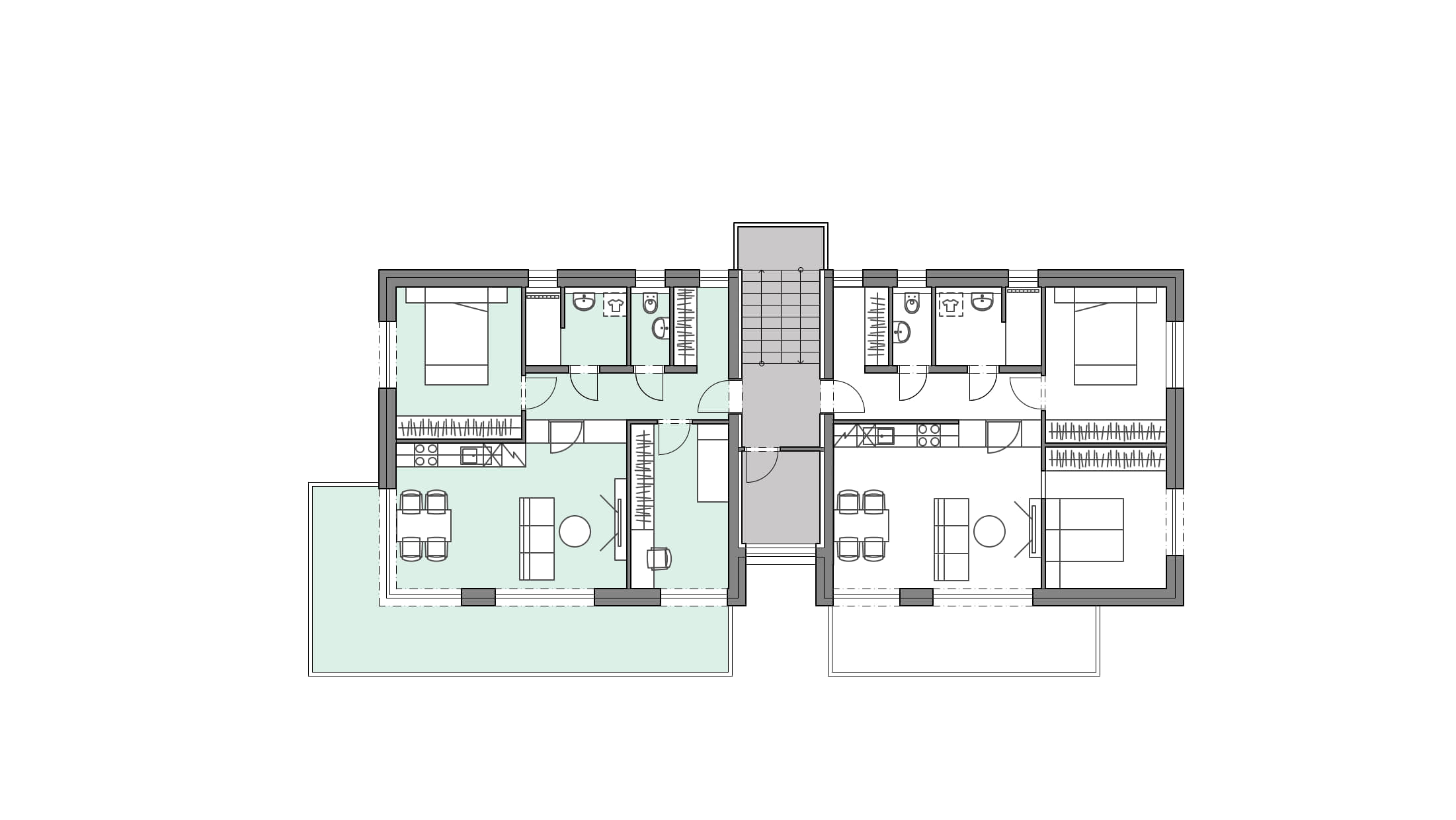
BYT 3+KK 65,7 m²
Jednopodlažní byt A21 v 1.patře s orientací na jihozápad nabízí prostorný obývací pokoj s kuchyní, ložnici a další pokoj / pracovnu. K dispozici má balkón s výhledy na beskydské vrcholy.
SMLUVNĚ ZAREZERVOVÁNO
plocha bytu 65,7 m², balkón 25,2 m²
za příplatek: 1-2 otevřené / kryté parkovací stání, venkovní sklad 5,6 m²
CHCI ZJISTIT VÍCE
Rádi Vám zpřístupníme podrobnější informace k projektu, podmínkám rezervace i splátkám, typům parkovacích stání a venkovnímu skladu.
Prozkoumejte služby lázní i kvalitu vybavení a materiálů v bytech předaných v létě 2025. Přijďte se přesvědčit na osobní prohlídku.
Odesláním formuláře berete na vědomí zásady zpracování vašich osobních údajů.



